公開日 2019年04月10日
更新日 2023年07月10日
釜石市魚河岸地区周辺のにぎわい創出の拠点となり、「魚のまち釜石」を発信する施設です。
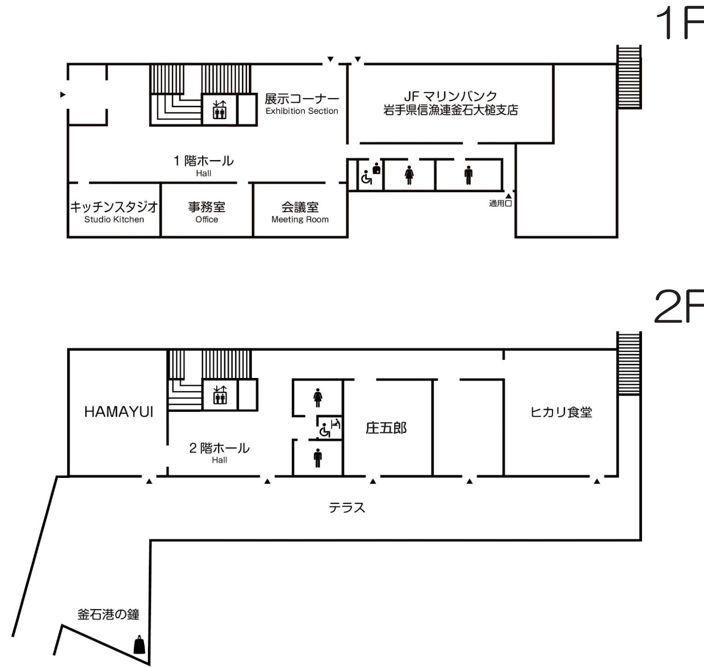
2階飲食店では、広々とした自然に工業港が溶け込んだ釜石湾の景色を一望しながら地元の食材を使った食事を楽しめるほか、1階にはキッチンスタジオ、会議室、展示・物販スペース、銀行、屋外にはイベント広場にもなる駐車場や24時間トイレがあり、地元の方をはじめ多くの方にご利用いただける施設となっています。
魚河岸テラスホームページはこちら

施設の概要
居住地
釜石市魚河岸3番3
指定管理者
株式会社かまいしDMC
施設の設備
| 設備 | 説明 |
|---|---|
| 1階ホール | 地元で水揚げされる魚介類の紹介を行う水槽を備えています。 |
|
展示・物販 スペース |
郷土芸能「虎舞」の展示や市内で生産される水産加工品の展示・物販スペースです。 |
| 会議室 | 1室(18席・有料)。会議以外にも多目的に利用することもできます。 |
| キッチンスタジオ | 魚食普及と食育の拠点として、一般利用できる厨房設備を設置しています。(コンロ2台、調理器具完備・有料)。 |
| 2階ホール | 自由に利用できる空間です。 |
| テラス | 釜石湾を一望しながらの食事や、花火の観覧ができます。 |
| 駐車場/広場 | 乗用車30台、大型バス2台を駐車することができます。イベント開催時にはイベント広場としても活用します。 |
入居テナント

| 店舗名 | 業態 | 座席数 | 電話番号 |
|---|---|---|---|
| JFマリンバンク 岩手県信漁連 釜石大槌支店 |
銀行 | ー | 0193-55-5316 |
| 魚河岸ジェラート部 | 飲食(ジェラート) | ー | 0193-27-5566 |
| HAMAYUI | 飲食(地中海料理) | 26 | 0193-55-6616 |
| 魚河岸 庄五郎 | 飲食(寿司・和食) | 22 | 0120-81-4056 |
| ヒカリ食堂 | 飲食(地産料理) | 40 | 0193-27-7475 |
※定休日、営業時間などの詳細は各店舗にお問い合わせください。
※2023年7月10日時点
施設案内図
利用料金
1 普通利用料(消費税込)
|
室名 |
区分 |
時間利用料金 |
区分利用料金 |
||
|
1時間当り |
9:00~13:00 |
13:30~17:30 |
9:00~17:30 |
||
|
1階ホール |
非営利利用 |
貸し切り時 以外は無料 |
3,000 円 |
3,000 円 |
5,000 円 |
|
営利利用 |
8,000 円 |
8,000 円 |
15,000 円 |
||
|
展示・物販スペース |
非営利利用 |
300 円 |
- |
- |
- |
|
営利利用 |
600 円 |
- |
- |
- |
|
|
キッチンスタジオ |
非営利利用 |
300 円 |
- |
- |
- |
|
営利利用 |
600 円 |
- |
- |
- |
|
|
会議室 |
非営利利用 |
300 円 |
- |
- |
- |
|
営利利用 |
600 円 |
- |
- |
- |
|
|
2階ホール |
非営利利用 |
貸し切り時 以外は無料 |
3,000 円 |
3,000 円 |
5,000 円 |
|
営利利用 |
8,000 円 |
8,000 円 |
15,000 円 |
||
|
共用テラス |
非営利利用 |
300 円 |
- |
- |
- |
|
営利利用 |
600 円 |
- |
- |
- |
|
|
屋外物販施設 |
非営利利用 |
300 円 |
- |
- |
- |
|
営利利用 |
600 円 |
- |
- |
- |
|
|
イベント広場 (駐車場) |
非営利利用 |
1区画当り100 円 |
- |
- |
- |
|
営利利用 |
1区画当り200 円 |
- |
- |
- |
|
2 有料貸出備品利用料(消費税込)
|
品名 |
利用可能な場所 |
利用料金(税込) |
||
|
2時間まで |
4時間まで |
4時間以上 |
||
|
プロジェクター |
にぎわい館内 |
500 円 |
800 円 |
1,200 円 |
|
ポータブルスクリーン |
にぎわい館内 |
500 円 |
800 円 |
1,200 円 |
|
スピーカーマイクセット |
にぎわい館内 |
500 円 |
800 円 |
1,200 円 |
|
音響セット |
にぎわい館内 |
1,000 円 |
1,600 円 |
2,400 円 |
利用案内
施設利用に関する詳細は下記をご覧下さい。
釜石魚河岸にぎわい館「魚河岸テラス」利用案内[PDF:290KB]
利用する際は、釜石魚河岸にぎわい館利用許可申請書を下記へ提出して下さい。
釜石魚河岸にぎわい館利用許可申請(22 KB docxファイル)![]()
※身体障害者手帳、精神障害者保健福祉手帳、療育手帳の交付等を受けている方、およびその介護者は、利用許可申請書と併せて利用料金減免申請書を提出いただくことで、普通利用料・有料貸出備品利用料が免除されます。
申込み・問合せ先
株式会社かまいしDMC
住所 〒026-0012 釜石市魚河岸3番3
TEL 0193-27-5566
アクセス
JR釜石線 釜石駅から徒歩25分
バス停 市営ビル前から徒歩3分
地図
この記事に関するお問い合わせ
PDFの閲覧にはAdobe社の無償のソフトウェア「Adobe Acrobat Reader」が必要です。下記のAdobe Acrobat Readerダウンロードページから入手してください。
Adobe Acrobat Readerダウンロード
